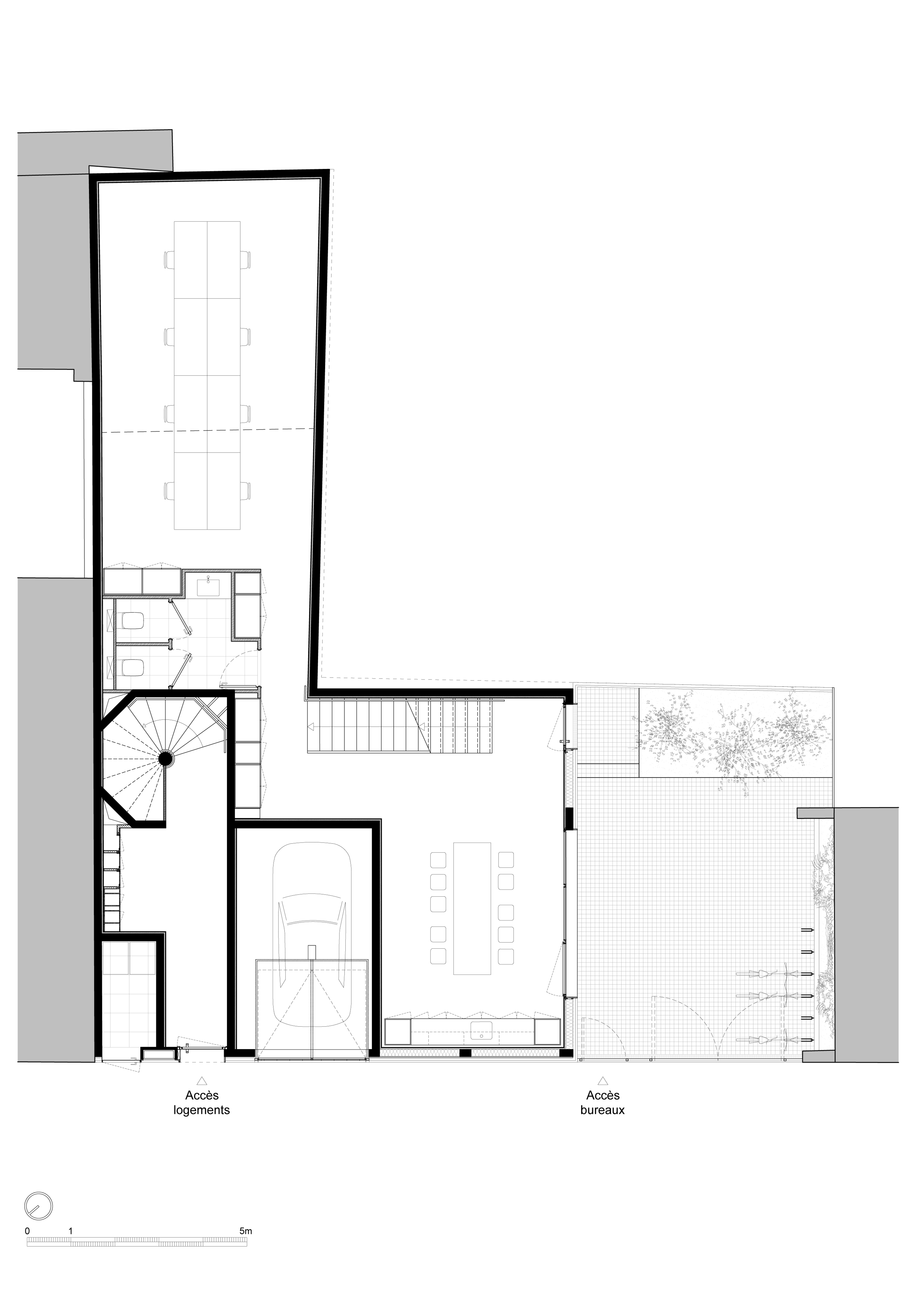
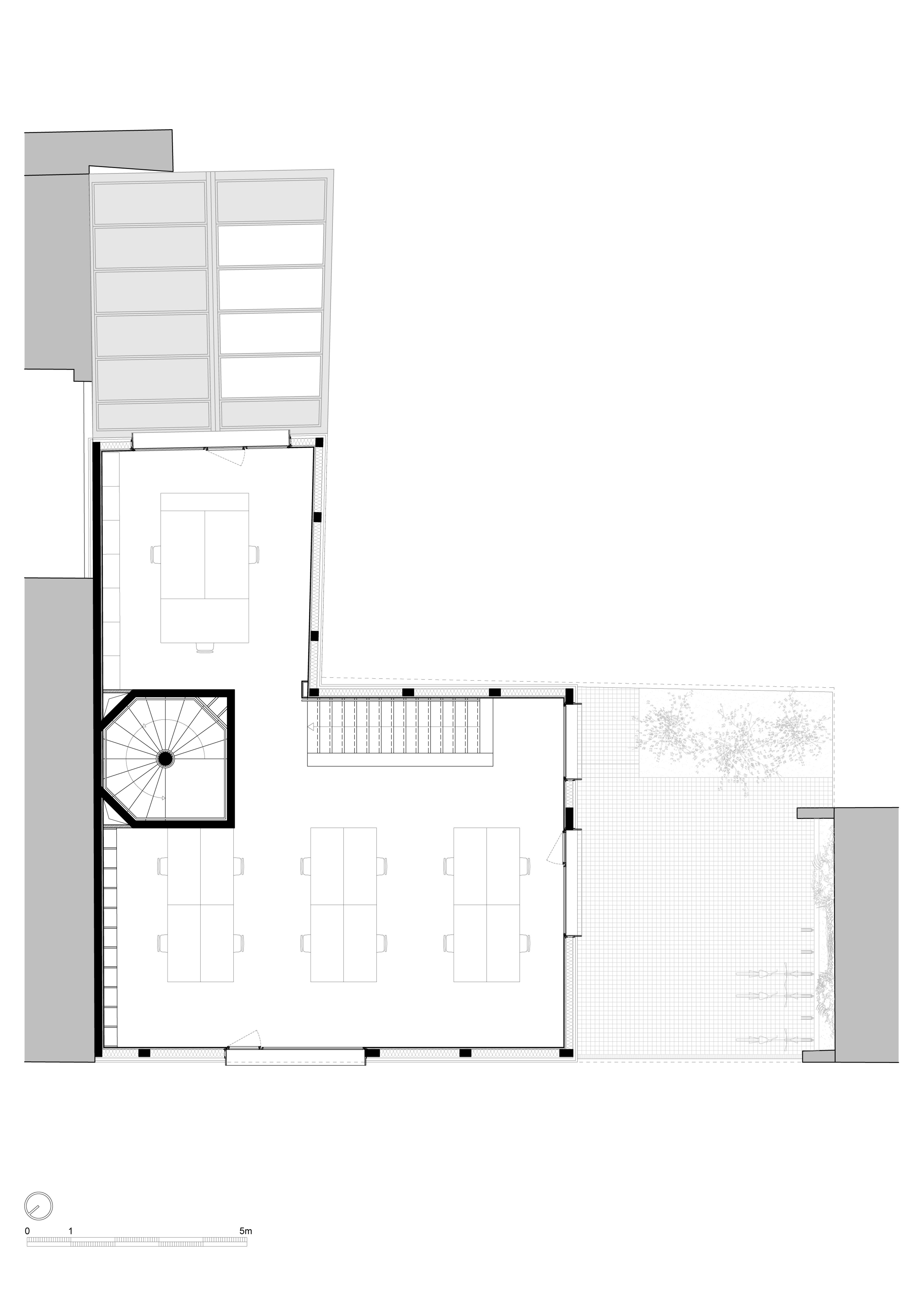
BUREAU & 4 LOGEMENTS















En limite des puces de Saint-Ouen, la rue est principalement constituée de maisons individuelles avec jardin et de petits immeubles de logements, assez caractéristiques des anciens quartiers ouvriers du XIXème siècle. Le projet consiste en l’édification d’un immeuble de 3 étages comprenant 4 logements et des bureaux. Afin de respecter les gabarits du PLU et le paysage environnant, nous avons développé une volumétrie avec des étages en retrait, offrant ainsi des espaces extérieurs pour les logements. L’emprise au sol partielle permet de libérer une cour et d’offrir un environnement végétal présent dans le cœur d’îlot. La largeur du bâti ainsi créé correspond à celle des parcelles voisines. Le cour offre une respiration dans le paysage étroit et longiligne de la rue. L’étroitesse de la rue et l'exiguïté de la parcelle nous ont orienté vers une structure mixte : plancher et poteaux béton, façade à ossature bois. Le bâtiment est bardé de douglas lasuré noir.
| Localisation | 39 rue Eugène Lumeau, Saint-Ouen |
| Maîtrise d’ouvrage | Privée |
| Mission | Complète |
| Équipe | RMDM architectes, MIZRAHI (BET TCE) |
| Surface | SDP : 505 m² |
| Montant des travaux | 1 000 000 € HT - €/m²SDP : 2 500 € |
| Eco label | - |
| ©CharlyBroyez | |














