450 LOGEMENTS COLLECTIFS, INTERMÉDIAIRES ET INDIVIDUELS






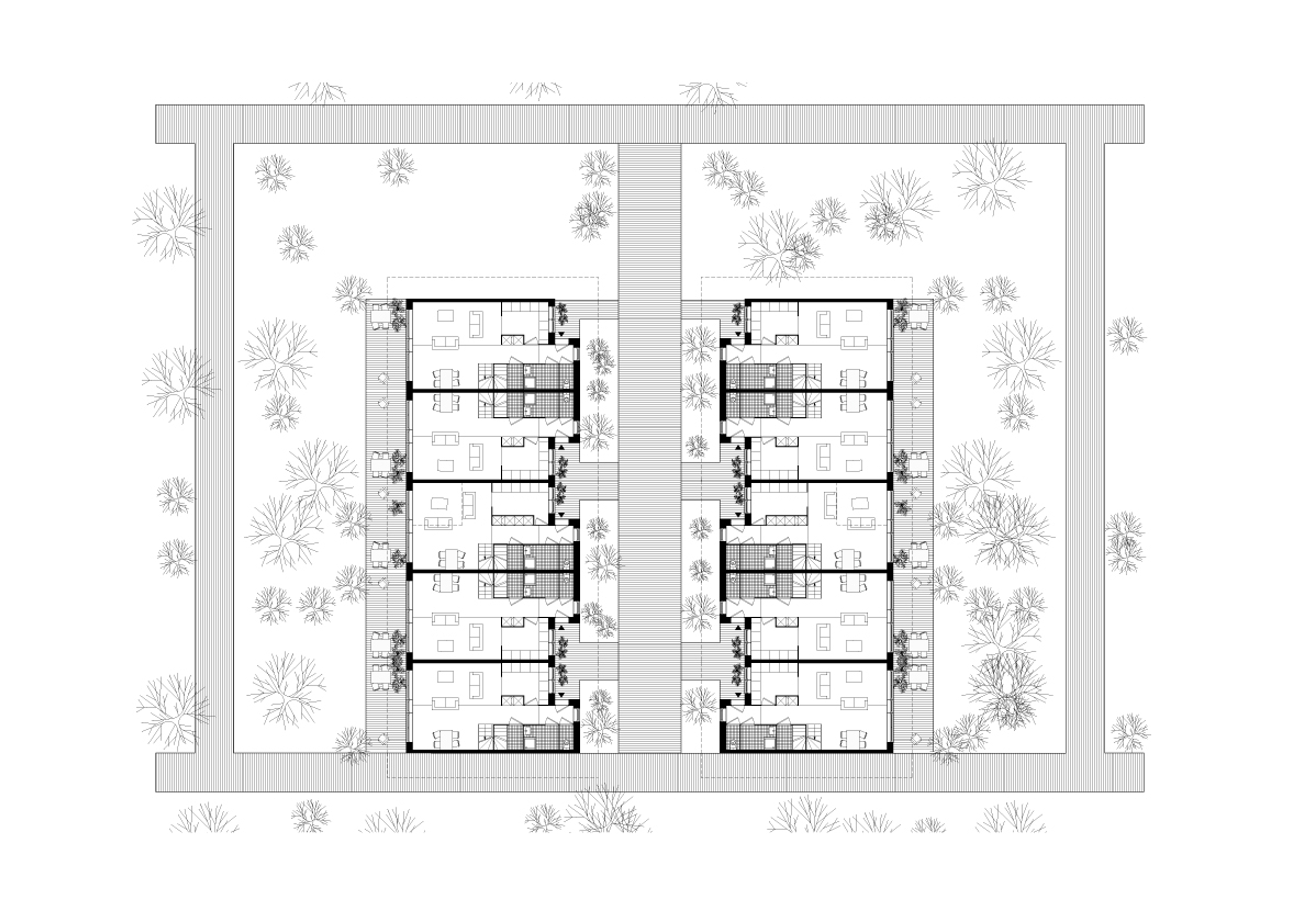
Le nouveau quartier de la Perche aux Mares s’implantera dans un terrain naturel et devra préserver au maximum la forêt, s’implanter de la façon la plus légère possible en s’inscrivant à un mètre du sol pour l’ensemble du projet. Dans ce quartier, les habitants doivent y trouver un équilibre entre les qualités individuelles fortes à l’intérieur du logement et un cadre collectif pour une vie de voisinage qui dépasse l’échelle même du quartier. Une promenade publique connectée au Perray et à la gare fixe définitivement la limite entre la ville et la forêt. Conçue comme un espace public, elle a vocation à rendre la forêt accessible à tous. Au cœur du site, la promenade redescend ponctuellement pour rejoindre le niveau organique naturel, offrant un accès privilégié à la forêt aux piétons et modes doux. Depuis les trois accès à la lisière, des perspectives sur la forêt sont offertes. Trois grandes fermes collectives sont implantées le long de la lisière. Ces fermes, inspirées de l’architecture locale, constituent les lieux de rencontre et d’échange du quartier où se croisent les résidents et les habitants du Perray. Les logements de la Perche aux Mares s’organisent sous forme de pièces rurales reliées par un réseau de promenades minimal. Construire un quartier sur pilotis implique de nombreuses contraintes notamment en matière d’accessibilité. En effet, il s’agit avant tout de produire un réseau de desserte qui favorise le bien-être et le vivre ensemble des futurs habitants et visiteurs du quartier.
| Localisation | Quartier de la Perche aux Mares, Le Perray-en-Yvelines (78) |
| Maîtrise d’ouvrage | Linkcity, Bouygues Immobilier |
| Mission | Concours |
| Équipe | Grau (architecte urbaniste), RMDM architectes, BRUTHER, ATELIER KEMPE TILL, SPLAAR, Patrick ECOUTIN (paysagiste), ELAN, EMBLIX |
| Surface | 27 855 m² |
| Montant des travaux | |
| Eco label | - |
| ©Artefactory | |





